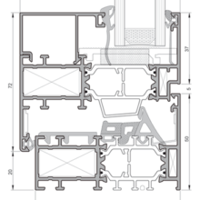
Newtec è il sistema per serramenti in alluminio Ponzio a camera R; consente la realizzazione di porte e finestre a battente di diverse tipologie.
NT 75 TT HI
SERIE: NEWTEC 75tt Hi
PROFILATI estrusi lega: 6060 (UNI 9006/1).
TOLLERANZE DIMENSIONALI E SPESSORI: UNI EN 12020-02 .
TIPO DI TENUTA ARIA ACQUA: giunto aperto o sormonto.
TAGLIO TERMICO: realizzato con due astine continue di poliammide rinforzata con fibra di vetro.
Nei profili maggiorati può essere inserito anche un setto in alluminio nell’interno tra le due astine per migliorare la trasmittanza termica.
APPLICAZIONI VETRO: con fermavetro a taglio 45° squadrato o a taglio 90° arrotondato.
CAMERA PER VETRO: variabile secondo i fermavetri usati.
DIMENSIONE BASE DEL SISTEMA:
Telaio : sezione 75/90,5 mm .
Anta : sezione 75/84 mm .
Fuga tra telaio e anta : 5 mm .
Fuga sul nodo centrale : 5 mm .
Aletta di battuta vetro : 22 mm .
Aletta battuta a muro : 22 mm .
IMPIEGO: il sistema permette la realizzazione di: finestre,vasistas,antaribalta,monoblocchi, portafinestra e portoncini ad una o più ante.
TRASMITTANZA TERMICA: Uw = 1,07 W/m2K con vetro Ug = 0,7 (intercalare caldo)
TRASMITTANZA TERMICA: Uw = 1,31 W/m2K con vetro Ug = 1,0 (intercalare caldo)
PERMEABILITA’ ALL’ARIA: CLASSE 4
TENUTA ALL’ACQUA: E1200
RESISTENZA AL CARICO DEL VENTO: C4
ISOLAMENTO ACUSTICO: 42-44 dB
 















