Ponzio WS è il sistema per serramenti in alluminio Ponzio a camera europea; consente la realizzazione di porte e finestre a battente.
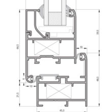
WS 45
SCHEDA TECNICA
PROFILATI estrusi lega: 6060 (UNI 9006/1).
TOLLERANZE DIMENSIONALI E SPESSORI: UNI EN 12020-02.
TIPO DI TENUTA ARIA ACQUA: giunto aperto o sormonto.
APPLICAZIONI VETRO: con fermavetro a taglio 45° squadrato o a taglio 90°arrotondato.
CAMERA PER VETRO: variabile secondo i fermavetri usati.
DIMENSIONE BASE DEL SISTEMA:Telaio fisso: sez. mm. 52/60.
Telaio mobile sez. mm. 52/61.
Fuga tra telaio fisso e telaio mobile: mm. 5.
Fuga sul nodo centrale mm. 3.
Aletta di battuta vetro mm. 22.
Aletta battuta a muro mm. 22.
IMPIEGO:il sistema permette la realizzazione di: finestre, portafinestra, wasistas, bilico, sporgere, antaribalta e monoblocchi, portoncini a una o più ante.
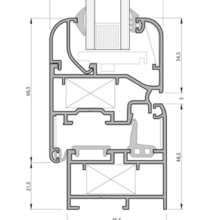
SCHEDA PRESTAZIONI
PERMEABILITA’ ALL’ARIA: CLASSE 4
TENUTA ALL’ACQUA: E1050
RESISTENZA AL CARICO DEL VENTO: C4
ISOLAMENTO ACUSTICO: 38 dB














