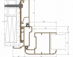
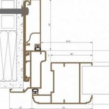
Persiana Rustica con Telaio
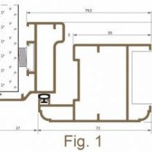
In caso di situazioni speciali sia nella ristrutturazione che nella nuova edilizia, in particolare in presenza del rivestimento a cappotto (isolante esterno) e non c’è la sicurezza di poter usufruire di un fissaggio solido al muro esterno con i cardini, si può optare per la scelta della persiana rustica con telaio. Di seguito è rappresentato il disegno relativo all’ancoraggio speciale (fig. 2) che, rispetto al fissaggio tradizionale (fig. 1), prevede una staffa che consente l’ancoraggio a muro. Per questa tipologia di persiana, è possibile scegliere tutte le linee estetiche della rustica eccetto la STANDARD, PIANA e 90 GRADI.














