Newtec è il sistema per serramenti in alluminio Ponzio a camera R; consente la realizzazione di porte e finestre a battente di diverse tipologie.
NT 65 TT
SERIE: NEWTEC 65tt
PROFILATI estrusi lega: 6060 (UNI 9006/1).
TOLLERANZE DIMENSIONALI E SPESSORI: UNI EN 12020-02.
TIPO DI TENUTA ARIA ACQUA: giunto aperto o sormonto.
TAGLIO TERMICO: realizzato con due astine continue di poliammide rinforzata con fibra di vetro.
APPLICAZIONI VETRO: con fermavetro a taglio 45° squadrato o a taglio 90° arrotondato.
CAMERA PER VETRO: variabile secondo i fermavetri usati.
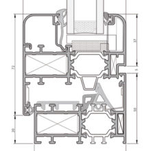
DIMENSIONE BASE DEL SISTEMA:
Telaio : sezione 65/80,5 mm .
Anta : sezione 65/74 mm .
Fuga tra telaio e anta : 5 mm .
Fuga sul nodo centrale : 5 mm .
Aletta di battuta vetro : 22 mm .
Aletta battuta a muro : 22 mm .
IMPIEGO: il sistema permette la realizzazione di: finestre,vasistas,antaribalta,monoblocchi, portafinestra e portoncini ad una o più ante.
TRASMITTANZA TERMICA: Uw = 1,07 W/m2K con vetro Ug = 1,07 (intercalare caldo)
TRASMITTANZA TERMICA: Uw = 1,31 W/m2K con vetro Ug = 1,31 (intercalare caldo)
PERMEABILITA’ ALL’ARIA: CLASSE 4
TENUTA ALL’ACQUA: E1200
RESISTENZA AL CARICO DEL VENTO: C4
ISOLAMENTO ACUSTICO: 42-44 dB














