Newtec è il sistema per serramenti in alluminio Ponzio a camera R; consente la realizzazione di porte e finestre a battente di diverse tipologie.
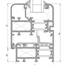
NT 60 TT
PROFILATI estrusi lega: 6060 (UNI 9006/1).
TOLLERANZE DIMENSIONALI E SPESSORI: UNI EN 12020-02.
TIPO DI TENUTA ARIA ACQUA: giunto aperto e sormonto.
TAGLIO TERMICO: realizzato con due astine continue di poliammide rinforzata con fibra di vetro.
APPLICAZIONI VETRO: con fermavetro squadrato o arrotondato con tagli a 45 o 90 gradi.
CAMERA PER VETRO: variabile secondo i fermavetri usati.
DIMENSIONE BASE DEL SISTEMA:
Telaio fisso: sez. mm 60/68.
Telaio mobile sezione mm 60 o 68.
Fuga tra telaio fisso e telaio mobile: mm. 5.
Fuga sul nodo centrale mm. 5.
Aletta di battuta vetro mm. 22.
Aletta battuta a muro mm. 22.
IMPIEGO: il sistema permette la realizzazione di: finestre, portafinestra, wasistas, bilico, sporgere, antaribalta e monoblocchi, portoncini a una o più ante.
TRASMITTANZA TERMICA: Uw = 1,36 W/m2K con vetro Ug = 0,7 (intercalare caldo)
TRASMITTANZA TERMICA: Uw = 1,59 W/m2K con vetro Ug = 1,0 (intercalare caldo)
PERMEABILITA’ ALL’ARIA: CLASSE 4
TENUTA ALL’ACQUA: 9A
RESISTENZA AL CARICO DEL VENTO: C4
ISOLAMENTO ACUSTICO: 37-46 dB












